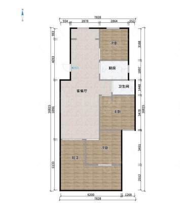
• 户型图
  • 卧室
  • 卧室
  • 卧室
  • 卧室
  • 卧室
  • 卧室
  • 卧室
  • 客厅
  • 客厅
  • 厨房
  • 卫生间
  • 卫生间